Aménagement bois verni côté gauche
Nissan Interstar - 2024
Référence : OKC0904
3 436,80 € TTC
Soit 2 864,00 € HT
Qté
AjouterDESCRIPTION
Profitez d’un aménagement bois côté gauche pour L2H2, équipé de 8 tiroirs avec loquets, 6 étagères et 2 étagères à bacs, idéal pour garder chaque outil à portée de main et structurer efficacement votre espace de travail.
Avec ses nombreuses possibilités de personnalisation, la gamme d’aménagements « Optipro » est la solution pour adapter vos équipements à vos besoins professionnels. En plus de sa modularité, la gamme Optipro est certifiée Crash-Test NS286 !
Ce kit d’aménagement « Optipro » a été optimisé pour votre véhicule utilitaire afin de vous proposer un maximum de rangements et de fonctionnalités pour maximiser votre productivité.
La structure des meubles Optipro est en contreplaqué verni 15mm et sont équipés d’un fond de meuble d’une épaisseur de 8mm (kit d’habillage Natural non inclus).
Afin de valider votre modèle de véhicule, merci de vérifier votre longueur utile au plancher (3225mm).
Les avantages des Kits d’aménagements « OPTIPRO »
- Ergonomie & praticité
- Large choix de combinaisons
- Poids contenu (- rejets de CO2)
- Utilisables sur plusieurs cycles
- Mobiliers sécurisés (Crash-test)
- Garantie fabricant 5 ans
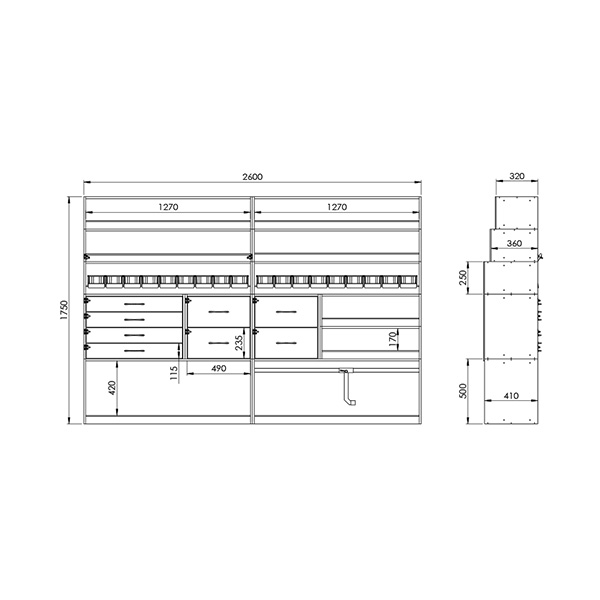
Description technique module(s) Optipro
Dimensions côté gauche L=2600 / H=1750 / P=410mm
Composition de votre aménagement OPTIPRO :
Arrière gauche :
- 1x – Passage de roue | 1300 x500x410mm
- 1x – Bloc 4 tiroirs | 780x500x410mm
- 1x – Bloc 2 tiroirs | 520x500x410mm
- 1x – Étagère à bacs | 1300x250x410mm
- – Étagère bandeau amovible | 1300x250x360mm
- 1x – Étagère | 1300x250x320mm
Avant gauche :
- 1x – Kit arrêt valise | 1300 x500x410mm
- 1x – Bloc 2 tiroirs | 520x500x410mm
- 2x – Étagères à séparations réglables | 780x250x410mm
- 1x – Étagère à bacs | 1300x250x410mm
- 1x – Étagère | 1300x250x360mm
- 1x – Étagère | 1300x250x320mm
Vue(s) technique(s) module(s) Optipro
Avertissement
De part la conception de la gamme Optipro et les contraintes techniques des véhicules, les modules choisis seront plus ou moins décalés de la paroi latérale.
Normes & certifications :
« NS-286 »
LES + PRODUITS

sécurité certifiée
En accord avec le cahier des charges de l’INRS, nos ingénieurs ont choisi des systèmes de fixation éprouvés lors de tests d’arrachement pour répondre aux exigences du crash-test « NS-286 »
(Crash-test N°2012 CR1TTT0185)

noblesse des matériaux
Les matériaux utilisés dans la gamme « OPTIPRO » ont été sélectionnés pour leur haute résistance mécanique (usage intensif).

ergonomie technique
À la demande de nombreux techniciens et CHSCT, la gamme « OPTIPRO » a été élaborée par notre bureau d’études pour vous apporter une réelle ergonomie (confort de travail au quotidien).
Notices & vidéos
Documentation Kit Utilitaire
PDF - 2.2 MB
Voir l'ensemble des documentations
Visiter la page

