Aménagement bois verni côté droit
Mercedes Vito III - 2014
Référence : OKC0609
667,20 € TTC
Soit 556,00 € HT
Qté
AjouterDESCRIPTION
Avec ses nombreuses possibilités de personnalisation, la gamme d’aménagements « Optipro » est la solution pour adapter vos équipements à vos besoins professionnels. En plus de sa modularité, la gamme Optipro est certifiée Crash-Test NS286 !
Ce kit d’aménagement « Optipro » a été optimisé pour votre véhicule utilitaire afin de vous proposer un maximum de rangements et de fonctionnalités pour maximiser votre productivité.
La structure des meubles Optipro est en contreplaqué verni 15mm et sont équipés d’un fond de meuble d’une épaisseur de 8mm (kit d’habillage Natural non inclus).
Afin de valider votre modèle de véhicule, merci de vérifier votre longueur utile au plancher (2831mm).
Les avantages des Kits d’aménagements « OPTIPRO »
- Ergonomie & praticité
- Large choix de combinaisons
- Poids contenu (- rejets de CO2)
- Utilisables sur plusieurs cycles
- Mobiliers sécurisés (Crash-test)
- Garantie fabricant 5 ans
Description technique module(s) Optipro
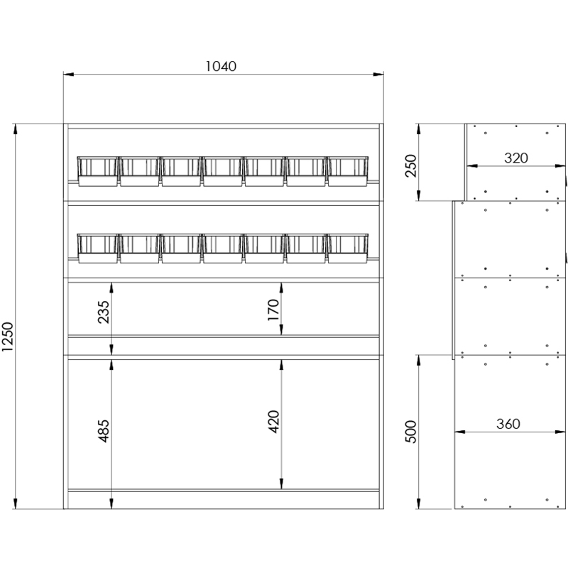
Dimensions côté droit L=1040 / H=1250 / P=360mm
Composition de votre aménagement OPTIPRO :
Arrière droit :
- 1x – Passage de roue | 1040x500x360mm
- 1x – Étagère | 1040x250x360mm
- 1x – Étagère à bacs | 1040x250x360mm
- 1x – Étagère à bacs | 1040x250x320mm
Vue(s) technique(s) module(s) Optipro
Avertissement
De part la conception de la gamme Optipro et les contraintes techniques des véhicules, les modules choisis seront plus ou moins décalés de la paroi latérale.
Normes & certifications :
« NS-286 »
LES + PRODUITS

sécurité certifiée
En accord avec le cahier des charges de l’INRS, nos ingénieurs ont choisi des systèmes de fixation éprouvés lors de tests d’arrachement pour répondre aux exigences du crash-test « NS-286 »
(Crash-test N°2012 CR1TTT0185)

noblesse des matériaux
Les matériaux utilisés dans la gamme « OPTIPRO » ont été sélectionnés pour leur haute résistance mécanique (usage intensif).

ergonomie technique
À la demande de nombreux techniciens et CHSCT, la gamme « OPTIPRO » a été élaborée par notre bureau d’études pour vous apporter une réelle ergonomie (confort de travail au quotidien).
Notices & vidéos
Documentation Kit Utilitaire
PDF - 2.2 MB
Voir l'ensemble des documentations
Visiter la page

